产品中心
产品特点
● 箱体结构示意图

GGD型交流低压配电柜适用于发电厂、变电站、厂矿企业等电力用户的交流 50Hz,额定工作电压 380V,额定工作电流至 3150A的配电系统,作为动力、照明及配电设备的电能转换、分配与控制之用。
GGD型交流低压配电柜是根据能源部主管上级与广大电力用户及设计部门的要求,本着安全、经济、合理、可靠的原则设计的新型低压配电柜。产品具有分断能力高、动热稳定性好、电气方案灵活、组合方便、系列性、实用性强、结构新颖、防护等级高等特点,可作为低压成套开关设备的更新换代产品使用。
产品符合IEC439《低压成套开关设备和控制设备》和 GB/T7251.12-2013《低压成套开关设备和控制设备 第2部分 成套电力开关和控制设备》等标准。
● 型号及含义
![]()

● 使用条件
![]()
周围空气温度不高于+40℃,不低于-5℃,24h 内的平均温度不得高于+35℃;
户内安装使用,使用地点的海拔高度不得超过 2000m;
周围空气相对湿度在最高温度为 +40℃时不超过 50%,应在较低温度时允许有较大的相对温度(例如 +2C℃时为 90%)考虑到由于温度的变化可能会偶然产生凝露的影响;
设备安装时与垂直面的倾斜度不超过 5°;
设备应安装在无剧烈震动和冲击的地方,以及不足以使电器元件受到腐蚀的场所;
用户有特殊要求时可与制造厂协商解决。
● 使用条件
![]()
| 型号 | 额定电压(V) | 额定电流(A) | 额定短路 开断电流(kA) | 额定短时 耐受电流(1s)(kA) | 额定峰值 耐受电流(kA) | |
| GGD1 | 380 | A | 1000 | 15 | 15 | 30 |
| B | 600(630) | |||||
| C | 400 | |||||
| GGD2 | 380 | A | 1500(1600) | 30 | 30 | 63 |
| B | 1000 | |||||
| C | 600 | |||||
| GGD3 | 380 | A | 3150 | 50 | 50 | 105 |
| B | 2500 | |||||
| C | 2000 | |||||
● 主电路方案
![]()
GGD 柜的主电路设计了 129 个方案,共 298 个规格(不包括辅助电路的功能变化及控制电,压的变化而派生的方案和规格):
其中:
GGD1型 49个方案123个规格
GGD2型 53个方案 107个规格
GGD3型27个方案68个规格
主电路方案是征求了广大设计、使用部门的意见选编的,增加了发电厂需要的方案。额定电流至 3150A,适合2000KVA及以下的配电变压器选用。此外,为适应无功补偿的需要设计了 GGJ1、GG]2 电容补偿柜,其主电路方案4个,共12个规格。
● 辅助电路方案
![]()
辅助电路的设计分供用电方案和发电厂方案两部分,GGD柜内有足够的空间安装二次元件,同时 NLS 还开发研制了专用的LMZ3D 型电流互感器以满足发电厂和特殊用户附设继电保护时的需要。
● 主母线
![]()
考虑到价格比和以铝代铜的可行性,额定电流在 1500A及以下时可采用单铝排母线,额定电流大于 1500A 时采用双铜排母线,生产厂按此规定制造样机并通过型式试验。当然,生产厂也可根据用户的要求将铝母线换成同等载流量的铜母线。
母线的搭接面均采用搪锡工艺处理。
● 电器元件选择
![]()
1.GGD柜主要采用国内已能批量生产的较先进的电器元件,同时也根据经济、合理的原则,在充分考虑可行性的前提下保留了部分可用的老产品如DZ10D、DZ20等,不选用已淘汰的产品。
2.HD13BX和 HS13BX型旋转操作式刀开关是 GGD柜独特结构的需要而设计的专用的元件,它改变了机构的操作方式,保留了老产品的优点,是一种实用新型的电器元件。
3.如设计部门根据用户需要,选用性能更优良、技术更先进的新型电器元件时,因 GGD柜具有良好的安装灵活性,一般不会因更新电器元件造成制造和安装方面的困难。
4.为进一步提高主电路的动稳定能力,GGD柜专用的ZM]型组合式母线夹和绝缘支撑件,母线夹由高强度、高阳燃型PpO合金材料热塑成型,绝缘强度高自熄性能好、结构独特,只需调整积木式间块即可方便地组合成单母线夹或双母线夹,绝缘支撑是套筒式模压结构,成本低、强度高,解决了老产品爬电距离不够的缺陷。
● 产品成套性 制造厂供货时应提供下列文件及附件:
![]()
1.装箱清单 2.产品合格证3.使用说明书 4.出厂试验报告 5.有关电气图纸6.柜门钥匙,操作手柄及合同单规定的备品备件。
● 结构特点
![]()
GGD型交流低压配电柜的柜体采用通用柜的形式,框架用 8MF 冷弯型钢经局部焊接组装而成,构架零件及专用配套零件由型钢定点生产厂配套供货,以保证柜体的精度和质量。通用柜的零部件按模块原理设计,并有20模的安装孔。通用系数高,可以使工厂实现预生产,既缩短了生产制造周期,也提高了工作效率。
GGD 柜设计时充分考虑到柜体运行中的散热问题。在柜体上下两端均有不同数量的散热槽孔,当柜内电器元件发热时,热气上升,通过上端槽孔排出而冷风不断地由下端槽孔补充进柜,使密封的柜体自下而上形成一个自然通风道,达到散热的目的。
GGD柜按照现代工业产品造型设计的要求,采用黄金分割比的方法设计柜体外形和各部分的分割尺寸,使整柜美观大方,面目一新。柜门用转轴式活动铰链与框架相连,安装、拆卸方便,门的折边处均嵌有一根山型橡塑条,关门时门与框架之间的嵌条有一定压缩行程,能防止门与柜体直接碰撞,也提高了门的防护等级。
装有电器元件的仪表门用多股软铜线与框架相连,柜内的安装件与框架间用滚花螺钉连接,整柜构成完整的接地保护系统。
柜体面漆选用聚脂桔形烘漆,具有附着力强,质感好,整柜呈亚光色调,避免了眩目效应,给值班人员创造了较舒适的视觉环境。
柜体的顶盖在需要时可拆除,便于现场主母线的装配和调整,柜顶的四角装有吊环,用于起吊和装运。
柜体的防护等级为 IP30,用户也可根据使用环境的要求在IP20--IP40之间选择。
● 安装与使用
![]()
产品到达收货堆点后,首先应当检查包装足否完整无损,发现问题应及时通知有关部门找原因,对于不立即安装的产品,应根据正常使用条件的规定放置于适当的场所。
● 产品安装
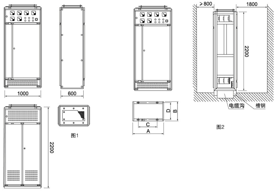
![]()
产品的安装应按安装示意图进行(见附图2)。基础槽钢和螺栓由用户自备,主母线铜排镀锡安装时应将搭接面修理平整,涂上中性凡士林或采取其他措施,然后用螺栓坚固。
● 产品在安装完毕后投入运行前应进行如下项目的检查与试验
![]()
检查柜体面漆有无脱落,柜内是否干燥,清洁;
电器元件的操作机构是否灵活,不应有卡滞或操作力过大现象;
主要电器的主辅触头的通断是否可靠,准确;
仪表指示与互感器的变比及极性是否正确;
母线连接是否良好,绝缘支撑件,安装件及附件是否安装牢固可靠;辅助接点是否符合要求,熔断器的熔芯规格是否正确,继电器的整定值是否符合设计要求,动作是否可靠准确;
电路的接点是否符合电器原理图要求;
保护电路系统是否符合要求;
用 500 伏欧姆表测置绝缘电阻值不得低于1兆欧。
● 外形及尺寸(mm)
![]()

产品代号 | A(mm) | B(mm) | C(mm) | D(mm) |
GGD06 | 600 | 600 | 450 | 556 |
GGD06A | 600 | 800 | 450 | 756 |
| GGD08 | 800 | 600 | 650 | 556 |
| GGD08A | 800 | 800 | 650 | 756 |
| GGD10A | 1000 | 600 | 850 | 556 |
| GGD10A | 1000 | 800 | 850 | 756 |
| GGD12 | 1200 | 800 | 1050 | 756 |
● 使用注意事项
![]()
本产品为不靠墙安装,单面(正面)操作,双向开门维修低压配电柜。产品的维修通道及柜门,必须经考核合格的专业人员方可进入或开启进行操作,检查和维修。
空气断路器,经过多次合、分后,会使主触头局部烧伤和产生碳类物质,使接触电阻增大,应定期对空气断路器按其使用说明书进行维护和检修。
● GGD1 型主电路方案
![]()


● GGD3 型主电路方案
![]()

